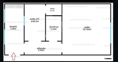
Nagyzuglóban három emeletes társasházban I. emeleti, 1 szoba + hálófülkés, 42 nm-es tégla lakás eladó.
A lakás kiváló elrendezésű: külön hálószoba a nyugodt alvásért ( természetes fényt a konyhán keresztül kap ) , a háztartási helyiség pedig mindent elnyel (mosógép, bojler, felmosó stb.). Az előszobában tolóajtós, tükrös beépített szekrény van, ami a vételár részét képezi, ahogyan a konyhai bútorok és a sütő is. A lakás észak-déli tájolású, a nappali világos, a konyha északra néz, minden oldalon redőnnyel szerelt ablakok vannak. A lakáshoz tartozik egy külön tároló helyiség is a társasház pinceszintjén.
A lakás 2016-ban műszaki és esztétikai felújításon esett át, az elektromos hálózat bővítése is megtörtént ekkor. Jó állapotú műanyag nyílászárók találhatók a lakáson. Víz-, villanyfogyasztás egyedi órával mérhető, fűtés távhővel megoldott.
A lakás a társasház első emeletén található, zárt körfolyosó végén levő utolsó lakás. Csendes szomszédok, jó lakóközösség.
Kiváló tömegközlekedés a környéken, metró, HÉV, villamos és buszok pár perc séta. Bevásárlási lehetőség, patika, iskola, óvoda, orvosi rendelő, park, kutyafuttató a közelben. Több felsőoktatási intézmény is séta távolságon belül. Parkolás utcán, közterületen lehetséges fizetős övezetben.
Tehermentes. A lakás részt vehet a 3%-os hitelfelvételi konstrukcióban.
