Örs Vezér tere és a Pillangó utcai metró is könnyen ELÉRHETŐ!!!
Magasföldszinti.Jó állapotú. Fűtése távfűtés. Melegvizet villanybojler biztosítja, mely vezérelt óráról működik.
Hálózat 32A-ra bővítve, vezetékek kicserélve.
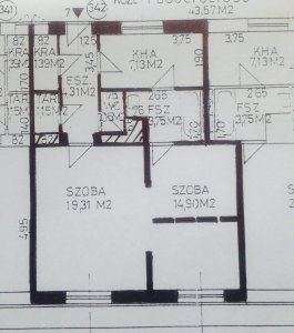
Nappaliban és a két félszobában parketta, konyhában előszobában, fürdőben járólap.
A lakás eredetileg 2 szobás volt, a 14,9 négyzetméteres szobát gipszkarton fallal 2 félszobává alakították.
Ez könnyen visszaalakítható.
Itt utca fronti ablak, motoros redőny, fényvisszaverő zunyogháló került beépítésre.
A nappaliban hűtő-fűtő klima, az ablakon motoros redőny, fényvisszaverős szunyugháló.
Konyhában beépitett villanytűzhely-hűtő-mosogatógép.
Az előszobába hatalmas, tükör/lakobell tolóajtós gardrobszekrény.
Valóban alacsony rezsi költség.
Jó lakóközösség.
M2 metró, Árkád, Ikea, Sugár, iskola óvoda 5-8perc sétára.
