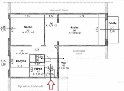
Adria sétányon 1990-ben épült sátortetős panelházban, I. emeleti, 53 nm-es, 2 szoba + hallos, 2013-ban teljeskörűen felújított, erkélyes lakás eladó. A 2 szoba különnyíló, a fürdőszoba és a wc külön helyiségben található.
A lakás két irányba néz Dk és Ény-i fekvésű.
